Mobile Dwelling Unit

a mobile home for our interconnected culture and life

completed

2002

location

mobile / exhibited at:
∙ the Walker Art Center, Minneapolis - Strangely Familiar: Design and Everyday Life, curated by Andrew Blauvelt, 2002
∙ the Art Museum at the University of California, Santa Barbara - solo exhibition LOT-EK: Mobile Dwelling Unit, curated by Christopher Scoates, 2003
∙ the Whitney Museum of American Art, New York - The Contemporary Series, curated by Debra Singer, 2004

size

500 SF

client

Christopher Scoates, Chief Curator, UCSB, Santa Barbara Art Museum, CA

collaborators

Justin Beal, Thomas Chirouse, Francesca Roatta, Noa Appel / project architects

fabrication

UAF / Marc Ganzglass

grants

American Center Foundation, National Endowment for the Arts, Italian Cultural Institute

photography

courtesy of the Walker Art Center

book

LOT-EK: Mobile Dwelling Unit, published by DAP
essays by Robert Kronenburg, Christopher Scoates, Henry Urbach, Aaron Betsky

awards

National Endowment for the Arts grant, National Endowment for the Arts (2002)

American Center in Paris grant , Foundation for Arts Initiatives (2002)

concept & vision

MDUs are conceived for individuals moving around the globe. The MDU travels with its dweller to the next long-term destination, fitted with all live/work equipment and filled with the dweller’s belongings. Once it reaches its destination, the MDU is loaded in MDU vertical harbors located in all major metropolitan areas

design & architecture

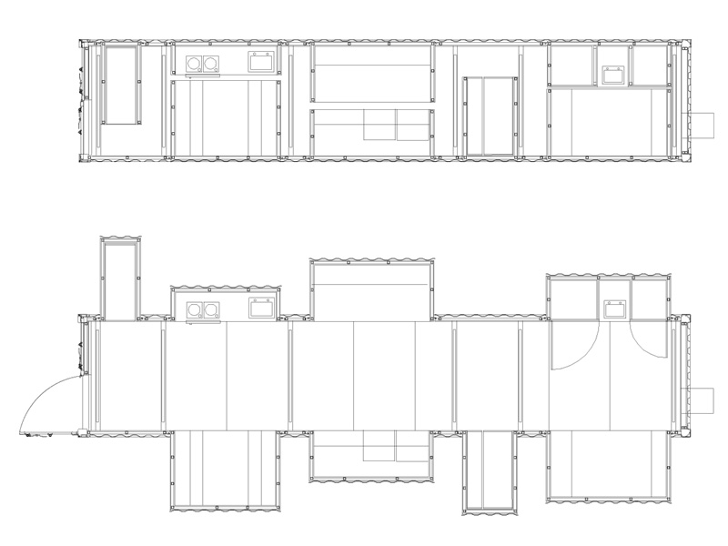
one shipping container is transformed into a Mobile Dwelling Unit. Cuts in the metal walls of the container generate extruded sub-volumes, each encapsulating one living, working or storage function. When traveling, these sub-volumes are pushed in, filling the entire container, interlocking with each other and leaving the outer skin of the container flush to allow worldwide standardized shipping. When in use, all sub-volumes are pushed out, leaving the interior of the container completely unobstructed with all functions accessible along its sides. The interior of the container and the sub-volumes are fabricated entirely out of plywood and plastic-coated plywood, including all fixtures and furnishings

impact & significance

an early exploration on the shipping containers takes advantage of the transportation networks and intermodal ability of the unit proposing a dynamic response to global movement and living

Feb 10, 2026

Inside an NYC Townhouse Made From 18 Shipping Containers

Inside an NYC Townhouse Made From 18 Shipping Containers

Lorem ipsum dolor sit amet, consectetuer adipiscing elit, sed diam nonummy nibh euismod tincidunt ut laoreet dolore magna aliquam erat volutpat. Ut wisi enim ad minim veniam, quis nostrud exerci tation ullamcorper suscipit lobortis nisl ut aliquip ex ea commodo consequat. Duis autem vel eum iriure dolor in hendrerit in vulputate velit esse molestie consequat, vel illum dolore eu feugiat nulla facilisis at vero eros et accumsan et iusto odio dignissim qui blandit praesent luptatum zzril delenit augue duis dolore te feugait nulla facilisi.

Dec 12, 2025

We Start With The Things We Find

We Start With The Things We Find

Lorem ipsum dolor sit amet, consectetuer adipiscing elit, sed diam nonummy nibh euismod tincidunt ut laoreet dolore magna aliquam erat volutpat. Ut wisi enim ad minim veniam, quis nostrud exerci tation ullamcorper suscipit lobortis nisl ut aliquip ex ea commodo consequat. Duis autem vel eum iriure dolor in hendrerit in vulputate velit esse molestie consequat, vel illum dolore eu feugiat nulla facilisis at vero eros et accumsan et iusto odio dignissim qui blandit praesent luptatum zzril delenit augue duis dolore te feugait nulla facilisi.